135 mq
3
2
LAZIO VITERBO Monte Romano
Zona Centrale QUADRILOCALE AMPIA METRATURA CON BALCONE.
Nella tranquilla cittadina di Monte Romano, a pochi chilometri da Tarquinia e dal mare, proponiamo in Vendita in zona centrale ampio e luminoso quadrilocale con balcone.
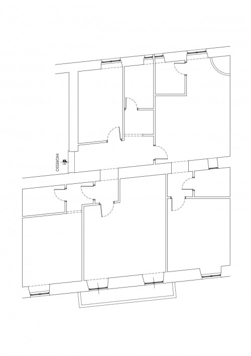
L'immobile, situato al piano terra rialzato di Via Cavour in un fabbricato con sole due unità abitative, è composto da: ingresso, cucina abitabile con camino, soggiorno con balcone, 3 camere da letto, 2 ripostigli, 2 bagni di cui uno con vasca e l'altro con doccia.
Le due porte finestre del soggiorno, consentono l'accesso al balcone che affaccia su Via Vittorio Emanuele e sulla piazza del Comune.
L'Appartamento, ristrutturato nel 2010, è termo autonomo alimentato a metano. Gli infissi sono in alluminio doppio vetro con persiane.
Condominio assente. Prezzo di Vendita richiesto TRATTABILE.
DISTANZE: 15 km da Tarquinia - 30 km da VITERBO - 30 km da Civitavecchia - 89 km GRA Roma - km 108 da Grosseto.

135 mq
3
2